1 3/4" Snap Lock Panel – Roofing
Home
1 3/4" Snap Lock Panel – Roofing
Roofing
The 1 3/4" Snap Lock Panel is a concealed-fastener metal roofing system designed for architectural and light commercial applications where a clean appearance and reliable performance are essential. Its snap-lock design allows panels to lock together without mechanical seaming, creating a sleek and modern roof profile.
Commonly used in residential homes, commercial buildings, and architectural projects, the 1 3/4" Snap Lock Panel offers a balance of visual appeal, performance, and installation efficiency.
Engineered for durability and weather resistance, the 1 3/4″ Snap Lock Panel provides excellent protection against the elements while maintaining a refined standing seam appearance. The concealed-fastener system enhances aesthetics and reduces long-term maintenance concerns.
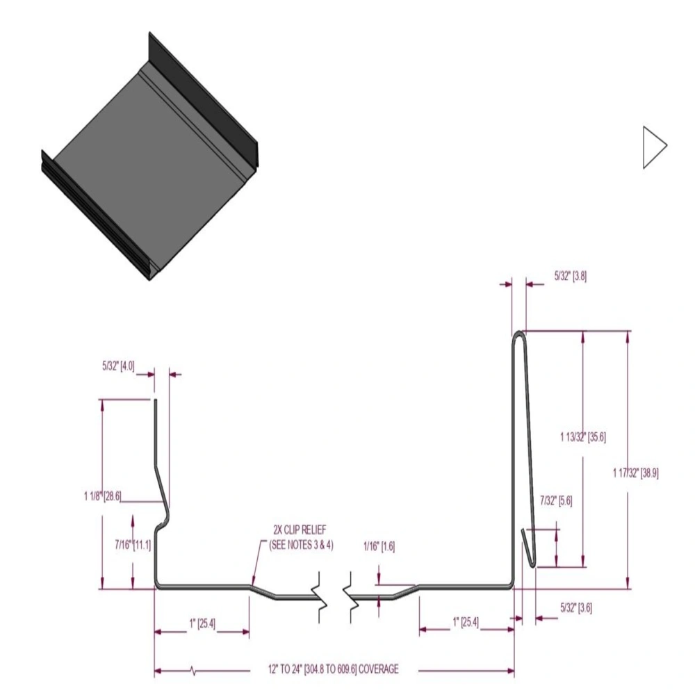
1 3/4" Snap Lock Panel Profile Options
The 1 3/4" Snap Lock Panel is available in configurations designed to meet a range of design and performance needs.
- 1 3/4″ high standing seam profile with snap-lock engagement
- Concealed-fastener system for a clean, uninterrupted roof surface
- Multiple gauge and finish options
These options allow flexibility in design while maintaining consistent performance and appearance.






Features
The 1 3/4″ Snap Lock Panel is engineered for strength, aesthetics, and efficient installation.
- 1 3/4″ high standing seam profile for enhanced rigidity and architectural definition
- Snap-lock panel engagement, eliminating the need for mechanical seaming
- Concealed fasteners to improve weather resistance and visual appeal
- Available in multiple gauges to meet structural and design requirements
- Suitable for residential and light commercial roofing applications
- Faster installation compared to mechanically seamed standing seam systems
Technical Resources & Downloads
Comprehensive technical documentation is available to support proper specification and installation of the 1 3/4″ Snap Lock Panel system.
- Product data sheets
- Installation guidelines and details
- CAD drawings and technical resources
For assistance in selecting the appropriate 1 3/4″ Snap Lock Panel configuration or for project-specific support, our team is available to help ensure your roofing system meets all structural and performance requirements.